Een bezichtiging inplannen?
Beschrijving
Ontdek dit ruime duplex-appartement met drie slaapkamers in Residentie Cypres, gelegen aan de Bevrijdingslaan 8 te Brugge. Op de 4de en hoogste verdieping geniet je hier van een prachtig uitzicht op het water dat de Vesten met de Steenkaai verbindt – een groene, rustige omgeving op wandelafstand van het centrum.
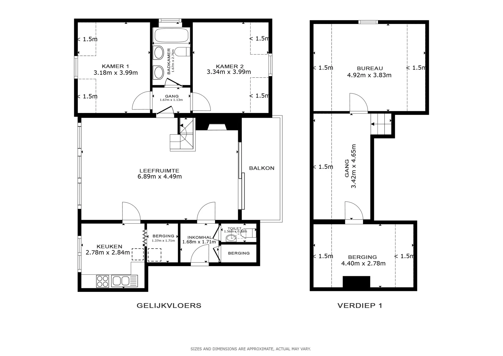
De inkomhal met afzonderlijk gastentoilet leidt naar een lichtrijke leefruimte met grote raampartijen en een rustgevend zicht op het groen en het water. De afzonderlijke keuken met berging biedt extra praktisch comfort. Verder op dit niveau: twee ruime slaapkamers en een badkamer met ligbad, dubbele wastafel en toilet.
De bovenverdieping is bereikbaar via een vaste trap vanuit de leefruimte en beschikt over een royale overloop met ingemaakte kasten, een derde slaapkamer en een grote berging.
Een ruime kelderberging is inbegrepen in de prijs; een garage kan optioneel (€ 30.000) worden aangekocht.
Een uitzonderlijk rustig gelegen duplex met veel ruimte, licht en een prachtig uitzicht — ideaal voor wie comfortabel wil wonen vlak bij het centrum én de expresweg.
Interesse?
De inkomhal met afzonderlijk gastentoilet leidt naar een lichtrijke leefruimte met grote raampartijen en een rustgevend zicht op het groen en het water. De afzonderlijke keuken met berging biedt extra praktisch comfort. Verder op dit niveau: twee ruime slaapkamers en een badkamer met ligbad, dubbele wastafel en toilet.
De bovenverdieping is bereikbaar via een vaste trap vanuit de leefruimte en beschikt over een royale overloop met ingemaakte kasten, een derde slaapkamer en een grote berging.
Een ruime kelderberging is inbegrepen in de prijs; een garage kan optioneel (€ 30.000) worden aangekocht.
Een uitzonderlijk rustig gelegen duplex met veel ruimte, licht en een prachtig uitzicht — ideaal voor wie comfortabel wil wonen vlak bij het centrum én de expresweg.
Interesse?
Documenten
Wim Gevaert
GSM
+32473704071
E-mail
wim@altro-vastgoed.be
Heb je interesse in deze woning?
Neem contact met ons op voor een bezichtiging of meer informatie.
Wim Gevaert
GSM
+32473704071
E-mail
wim@altro-vastgoed.be
Meer info aanvragen
Wim Gevaert
GSM
+32473704071
E-mail
wim@altro-vastgoed.be