Een bezichtiging inplannen?
Contacteer de makelaar via wim@altro-vastgoed.be of +32 473 70 40 71

Instapklaar appartement met zicht op Muinkpark in Gent

Bent u al een tijd op zoek naar een instapklaar appartement op een topligging in Gent? Dan is dit uw kans.

Gelegen op de eerste verdieping in de François Benaertstraat 46 bevindt zich dit prachtig gerenoveerd en perfect onderhouden appartement, pal aan het Muinkpark en op wandelafstand van het centrum én vlot bereikbaar via de invalswegen.

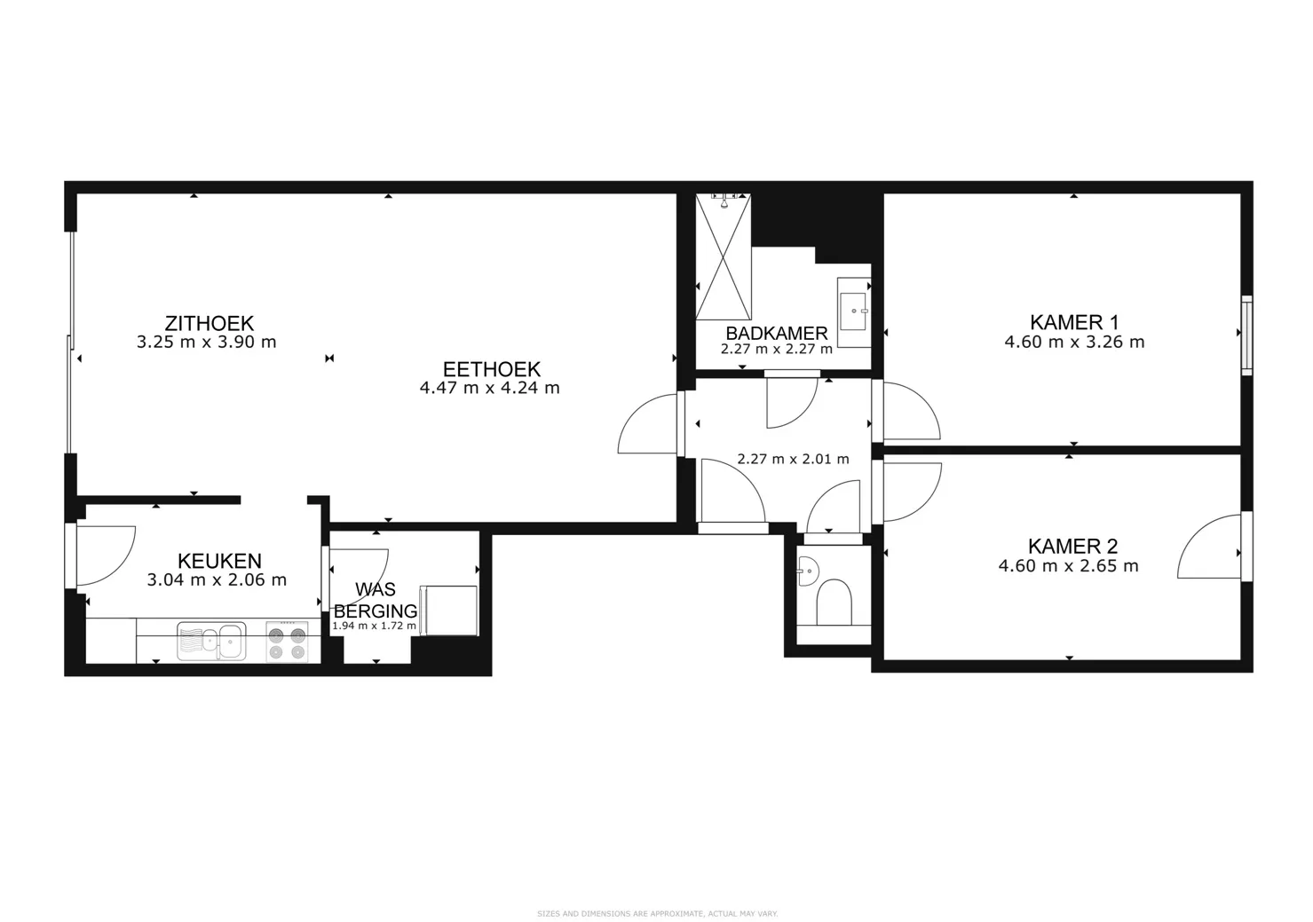
De indeling is doordacht en meteen overtuigend: een lichtrijke leefruimte met geïnstalleerde keuken, twee volwaardige slaapkamers, een moderne badkamer met inloopdouche, afzonderlijk toilet, berging en inkomhal. Zowel voor- als achteraan geniet u van een balkon met open zichten op het Muinkpark, de Sint-Pietersabdij en de omgeving.

Extra troef: mogelijkheid tot aankoop van een overdekte staanplaats, wat het comfort op deze centrale ligging compleet maakt.

Dit is geen appartement dat u moet aanpassen, maar één waar u meteen kan intrekken en genieten.

Wenst u deze opportuniteit zelf te ontdekken?

Wim Gevaert

Heb je interesse in deze woning?

Neem contact met ons op voor een bezichtiging of meer informatie.

Wim Gevaert