Duplex appartement in het hart van Lokeren!
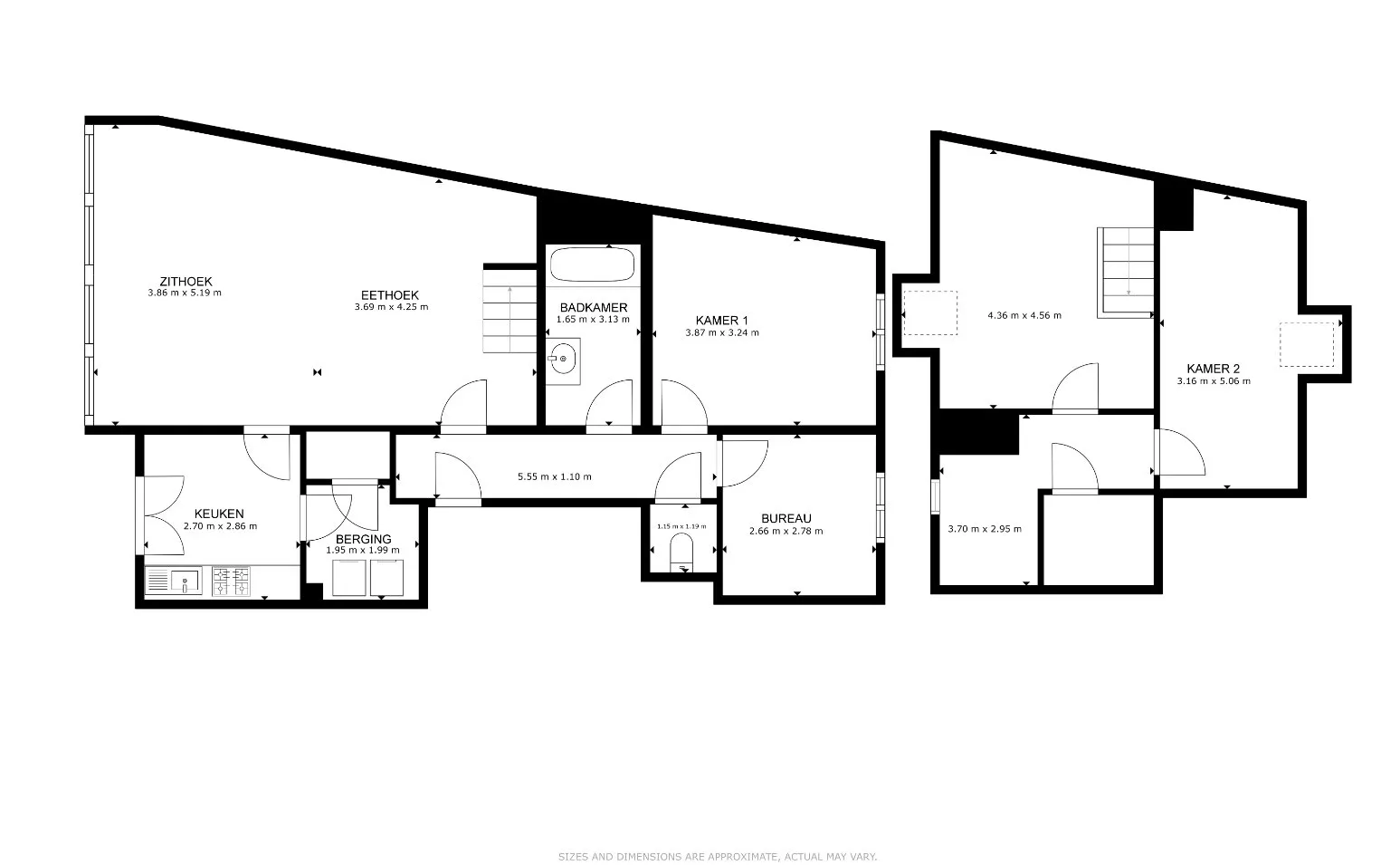
Dit lichtrijke duplex appartement zal je meteen verrassen door zijn uitzonderlijk ruim gevoel en praktische indeling. Bij het binnenkomen word je verwelkomd in een enorme lichtrijke woonkamer waar grote raampartijen zorgen voor een aangename, open sfeer. Dankzij de indeling over twee verdiepen voelt het appartement extra ruim aan. Het appartement beschikt over twee volwaardige slaapkamers, ideaal voor een starters, een jong gezin of wie graag een extra kamer heeft. Daarnaast is er een aparte bureau en een bijzonder ruime overloop die zich uitstekend leent als speelkamer of hobbyhoek. De badkamer is praktisch ingericht en biedt alle. Een aparte berging/wasplaats zorgt voor extra functionaliteit. Met een gunstig EPC B woon je hier bovendien energiezuinig. Combineer dit met de super centrale ligging, op wandelafstand van winkels, horeca, scholen en openbaar vervoer, en je weet dat dit appartement een unieke kans is voor wie comfortabel wil wonen in het centrum van Lokeren. Vraagprijs vanaf € 249 000,-
Graag een bezoek inplannen of wens je meer informatie?
Contacteer Melanie via 0478 64 85 78 of melanie@altro-vastgoed.be!
Documenten
Ligging
Heb je interesse in deze woning?
Neem contact met ons op voor een bezichtiging of meer informatie.
Meer info aanvragen