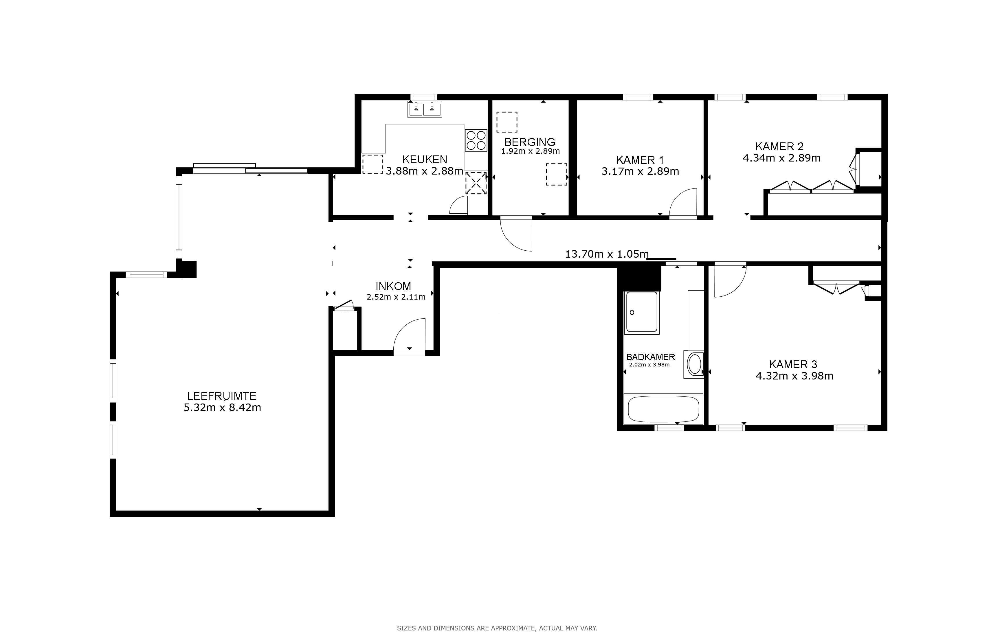
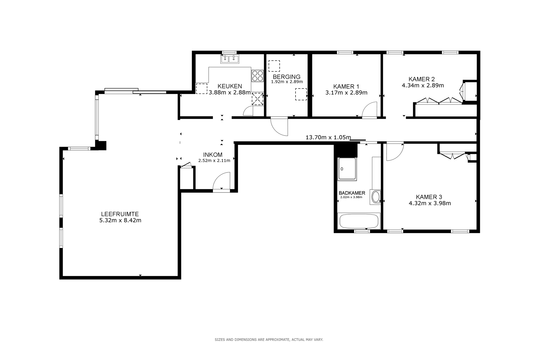
ALTRO VASTGOED VERKOOPT | Nabij centrum Oudenburg heb je Residentie ‘Hannelore’, gebouwd in 2024 en gekenmerkt door al het hedendaags comfort en voorzieningen. Hier kan je deze luxueus afgewerkte penthouse met hoogwaardige materialen vinden. Kosten nog moeite werden gespaard! De penthouse zelf heeft een bewoonbare oppervlakte van 130m”, exclusief zuidwest georiënteerd terras van maar liefst 43m². Een lift brengt je tot de hoogste verdieping met volgende indeling: inkom met ingemaakte kast en open doorgang richting de enorm lichtrijke woonruimte met eetruimte en toegang tot de volledig geïnstalleerde, open keuken, voorzien van alle toestellen. Via de eetruimte is er tevens toegang tot het ruime terras. Grenzend aan de keuken en via de nachthal is er een berging voorzien, een badkamer, bureauruimte (of kinderkamer / dressing), afzonderlijk toilet en twee meer dan volwaardige slaapkamers. De indeling kan desgewenst gewijzigd worden naargelang de eigen wensen. De penthouse is gekenmerkt door kwalitatieve en tal van leuke elementen. Een afzonderlijke, gesloten garagebox kan mee aangekocht worden voor 30.000 euro. Troeven: vloerverwarming, zonnepanelen, airco, verzonken deurklinken, ingebouwde led strips, ... Nieuwsgierig? Kom langs om deze parel te ontdekken! Contacteer me voor het plannen van een afspraak via 0478 59 77 41 of michiel@altro-vastgoed.be / http://bit.ly/48S4tNB