Een bezichtiging inplannen?
Contacteer de makelaar via emma@altro-vastgoed.be of +32 456 89 11 63

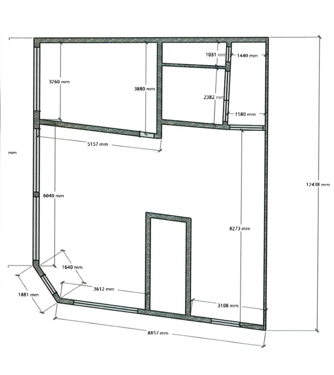
Hoekpand handelspand met toekomstpotentieel

ONTDEK UW TOEKOMSTIGE HANDELSPAND IN HOMBEEK – FRANS REYNIERSSTRAAT 46A

Unieke kans: dit karaktervolle hoekpand in een rustige zone-30 straat in Hombeek (Mechelen) biedt een zeldzame combinatie van zichtbaarheid, bereikbaarheid én flexibiliteit. Dankzij de gunstige ligging is er aanzienlijke voorbijgang – een bushalte pal voor de deur versterkt de toegankelijkheid – wat dit pand uitermate geschikt maakt als commerciële trekker of multifunctionele investering.

De voorgevel is een echte blikvanger: een indrukwekkende historische gevel, momenteel in opknapfase, die het pand extra uitstraling en prestige verleent. Achter deze fraaie gevel schuilt een ruime, solide structuur met een inpandige garage voor één wagen – een zeldzame troef in deze omgeving.

Het geheel wacht op uw visie: renoveer naar eigen inzicht en geef er vorm aan wat ú voor ogen hebt. Van kantoorruimtes tot een kinesitherapiepraktijk, van stijlvolle boetiek tot creatieve coworkingruimte – alles is mogelijk.

Hombeek is een groene deelgemeente van Mechelen, strategisch gelegen op de as Antwerpen–Brussel. U geniet er van rust en natuur – met onder meer de Eglegemvijver om de hoek – terwijl het bruisende Mechelse centrum slechts enkele minuten verwijderd is.

Dankzij de hoekligging valt er veel natuurlijk licht binnen, wat een aangename en inspirerende werkomgeving creëert.

Voor wie op zoek is naar een investering met karakter en toekomstpotentieel: dit pand is uw ideale canvas. Kom ter plaatse kijken en laat u overtuigen door de combinatie van historische charme en eindeloze mogelijkheden.

Interesse? Neem vandaag nog contact op om een bezichtiging te plannen. Uw toekomst begint hier, in Hombeek.
emma@altro-vastgoed.be

Heb je interesse in dit commercieel pand?

Neem contact met ons op voor een bezichtiging of meer informatie.