Handelshuis met woonst op sterke locatie in Sint-Kruis
In een authentieke Brugse buurt met sterke lokale verankering bevindt zich dit veelzijdige handelshuis met woonst, gelegen in de Karel Van Manderstraat 18 te Sint-Kruis. Een interessante opportuniteit voor wie wonen en werken wil combineren op één locatie.
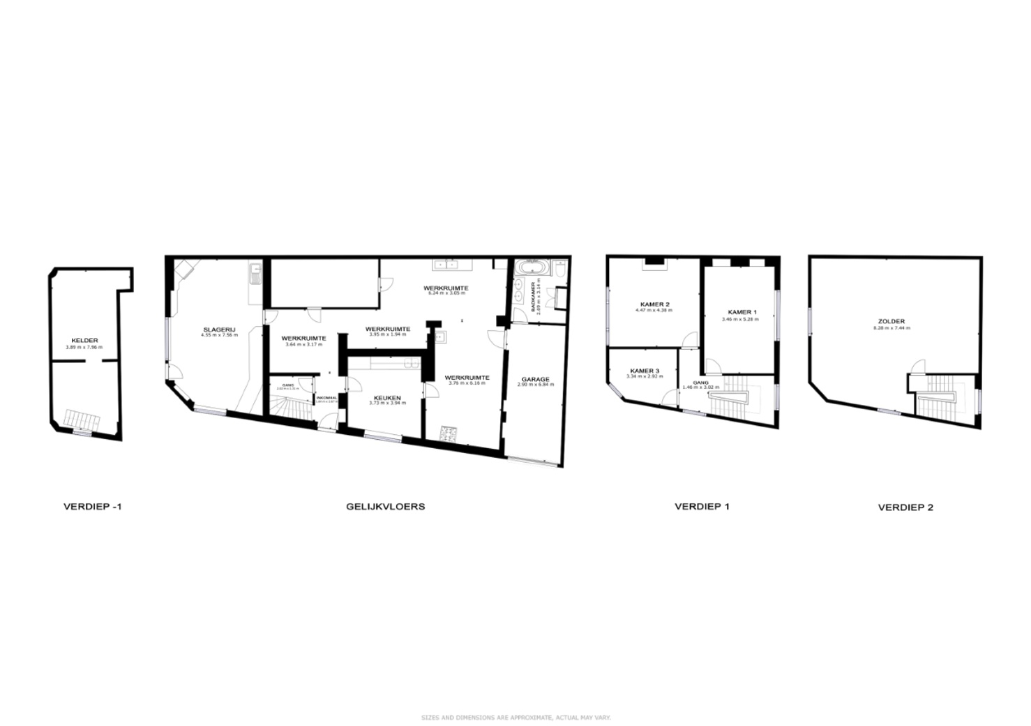
Het handelspand wordt momenteel uitgebaat als slagerij en beschikt over een ingerichte winkelruimte met toonbank, diverse werkruimtes, koelcellen en een ruim atelier. Daarnaast zijn er verschillende stockageruimtes, een praktische kelder en een afzonderlijke privéruimte, wat zorgt voor een functionele en efficiënte indeling voor handelsactiviteiten.
Een bijkomende troef is de aanwezigheid van een garage, ideaal voor leveringen of privégebruik.
Boven de handelsruimte bevindt zich de woonst met drie slaapkamers, een badkamer op het glv. en een ruime zolder die bereikbaar is via een vaste trap. Deze zolder biedt extra mogelijkheden zoals een hobbyruimte, bureau of bijkomende slaapkamers.
De ligging vormt een belangrijke meerwaarde. Alle straten in deze volkswijk werden recent volledig vernieuwd, wat zorgt voor een verzorgde en aangename omgeving. Bovendien bevindt het pand zich in een levendige buurt waar lokale handel en buurtcontact nog centraal staan.
Interesse? Bezoeken zijn enkel mogelijk op woensdag.
Documenten
Heb je interesse in deze woning?
Neem contact met ons op voor een bezichtiging of meer informatie.
Meer info aanvragen