Een bezichtiging inplannen?
Contacteer de makelaar via wim@altro-vastgoed.be of +32473704071
Beschrijving
LAATSTE WONING

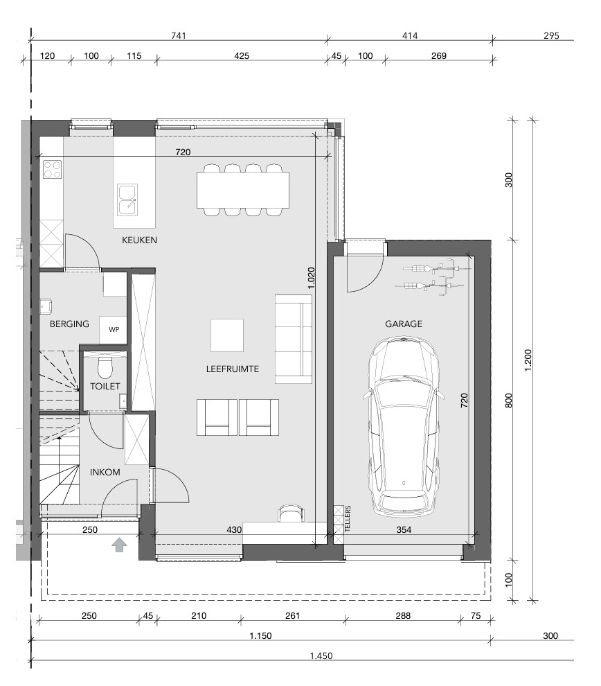
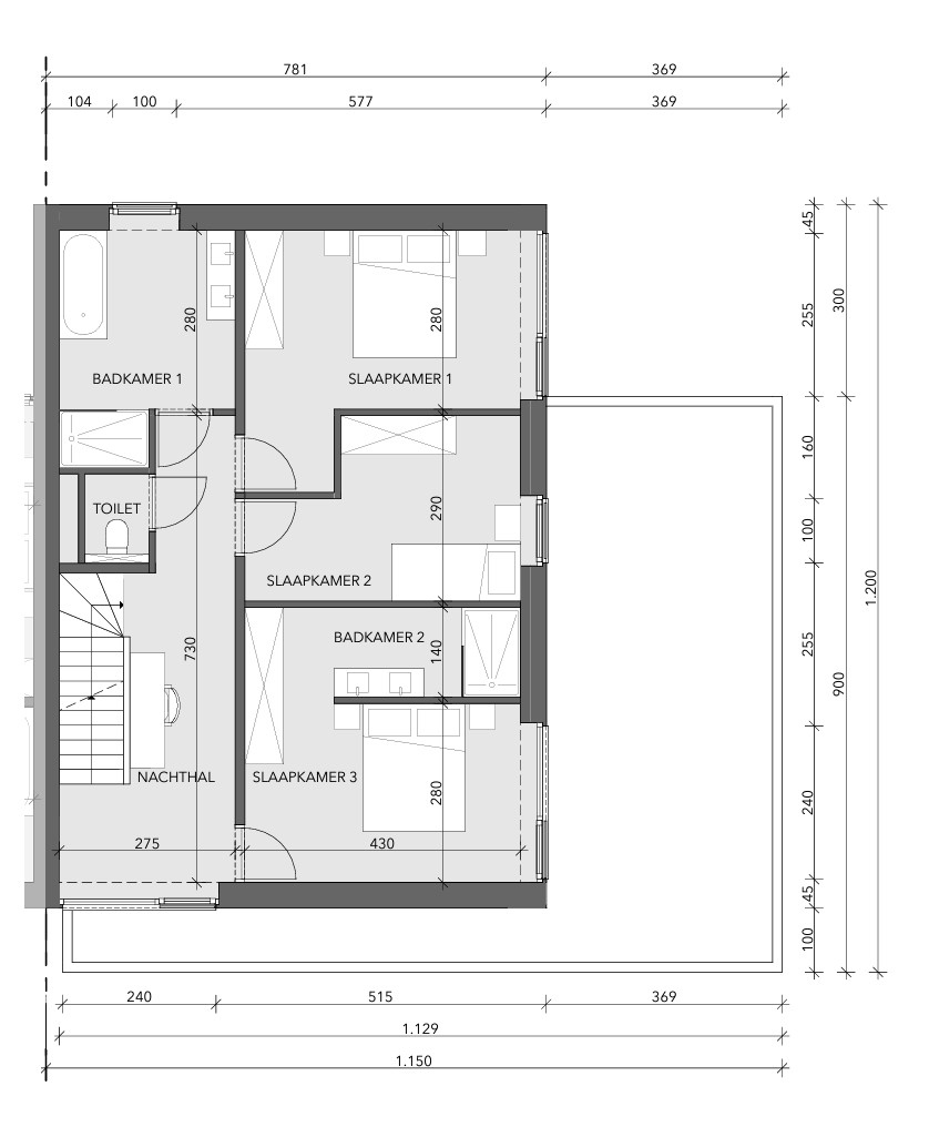
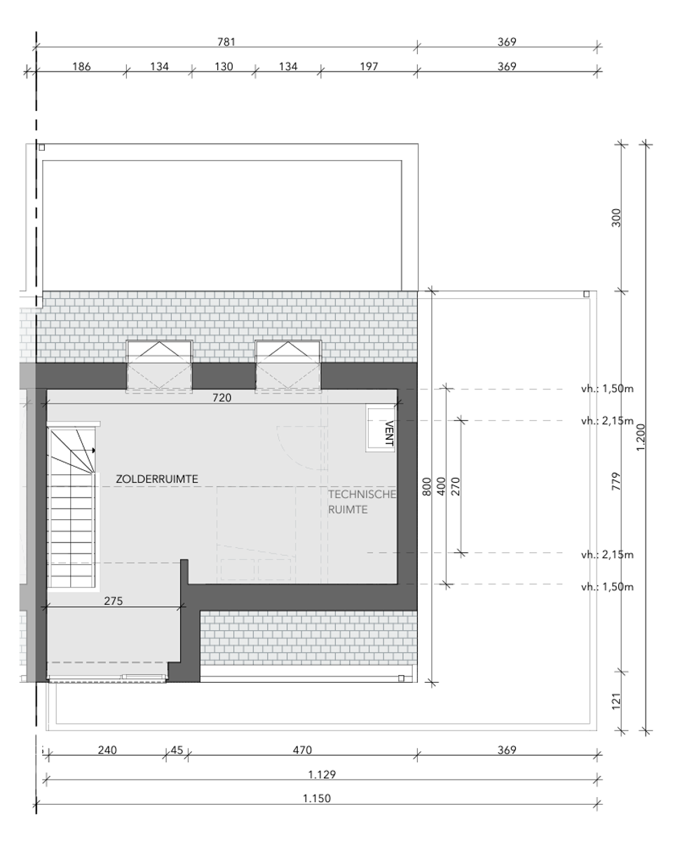
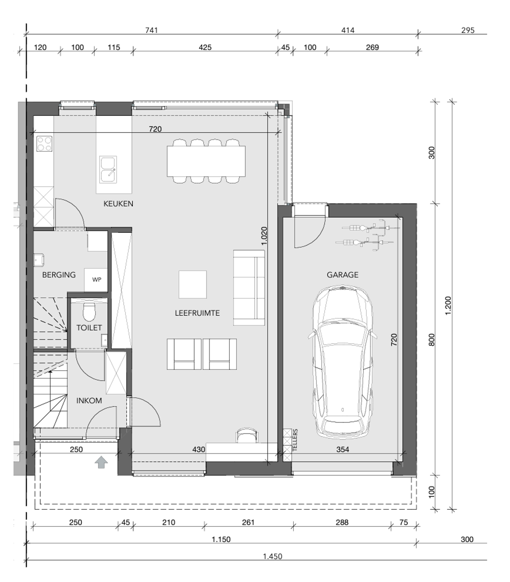
Een ruime ( 286 m²) moderne woonst met 4 slaapkamers en 2 badkamers, gelegen op een zonnig georiënteerd perceel van 850 m². Verder beschikt deze energiezuinige (E25) gezinswoning over een afgewerkte zolder, bereikbaar via een vaste trap en een zeer ruime garage.

De statige woonst biedt niet alleen veel licht en leefruimte maar ook een hoogstaand wooncomfort door een riant keukenbudget, parketvloeren op de bovenverdiepingen en vloerverwarming in elke ruimte. De energielevering wordt voorzien door een hoogwaardige geothermische warmtepomp waarmee ook passief kan worden gekoeld op warme zomerdagen. Aangevuld met zonnepanelen en een slim ventilatiesysteem (type D).

Ook de buitenzijde is afgewerkt met hoogwaardige materialen en combineren ingetogen grijstinten en bronskleurig aluminium schrijnwerk voor een moderne, architecturale look.

Gelegen in het residentiële hart van Sint-Michiels, nabij Tillegembos, de historische binnenstad en de E40 en E403 binnen handbereik. Alle voorzieningen (scholen, sport, bib, winkels, horeca) zijn vlot bereikbaar.

De prijs is de prijs. Bij deze nieuwbouwwoning is er een prijsgarantie: de prijs bij ondertekening van het compromis verandert niet meer. Dat zorgt voor zekerheid.
Wim Gevaert

Heb je interesse in deze woning?

Neem contact met ons op voor een bezichtiging of meer informatie.

Wim Gevaert