Een bezichtiging inplannen?
Contacteer de makelaar via +32 473 70 40 71 of maak een afspraak

Wonen met ruimte, zichtbaarheid en potentieel!

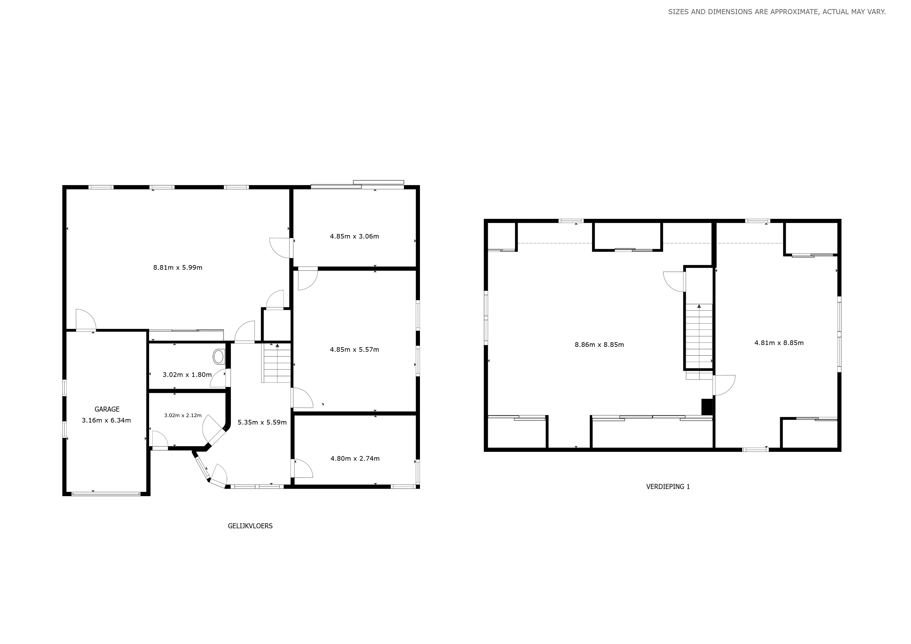
Op zoek naar een eigendom die je volledig naar jouw hand kan zetten, op een strategische en vlot bereikbare locatie? Deze woning aan de Koning Albert I-laan 201 in Sint-Michiels biedt maar liefst 308 m² bruikbare oppervlakte en vormt de ideale basis voor wie ruimte en mogelijkheden zoekt.

De indeling vandaag omvat een ruime inkom met wachtruimtes, meerdere bureauruimtes, sanitair en een grote archiefruimte op de verdieping. Deze structuur laat zich perfect herdenken naar een volwaardige, ruime gezinswoning of een combinatie van wonen en werken (max. 100 m² kantoor/commercieel mogelijk volgens de bestemming).

Dankzij de grote raampartijen geniet je van een aangename lichtinval doorheen de volledige woning. Extra troeven zijn de inpandige garage, zolderruimte en de 3 private parkeerplaatsen vooraan, aangevuld met bijkomende parkeermogelijkheden in de directe omgeving.

Dit is geen standaard woning, maar een opportuniteit voor wie visie heeft en waarde wil creëren op een topligging met uitstekende bereikbaarheid en visibiliteit.

Interesse om deze eigendom verder te ontdekken en de mogelijkheden te bekijken?

Wim Gevaert

Heb je interesse in deze woning?

Neem contact met ons op voor een bezichtiging of meer informatie.

Wim Gevaert